Tên công trình : P.M HOUSE
- Đơn vị thiết kế: MILI CỘNG
- Loại hình: Nhà ở / Nhà Phố
- Quy mô : 3 tầng
- Diện tích xây dựng : 120 m2
- Diện tích khu đất : 170 m2
- Phong cách thiết kế : Hiện Đại
Trong bối cảnh đô thị ngày càng phát triển, những ngôi nhà phố không chỉ cần đẹp mà còn phải đáp ứng đầy đủ công năng sống, đảm bảo sự thông thoáng và mang lại cảm giác gần gũi với thiên nhiên. PM House là một công trình nhà phố 3 tầng được thiết kế theo phong cách hiện đại, tối giản nhưng tinh tế, nơi kiến trúc và cây xanh hòa quyện để tạo nên một không gian sống thoải mái, tiện nghi và đầy cảm hứng.
Công trình được MiLi Cộng nghiên cứu và phát triển dựa trên tiêu chí: tối ưu diện tích đất, đảm bảo công năng sinh hoạt cho gia đình nhiều thế hệ và mang lại giá trị thẩm mỹ bền vững theo thời gian.
Kiến trúc mặt tiền hiện đại, tinh giản và sang trọng
Điểm nổi bật của PM House nằm ở ngôn ngữ kiến trúc hiện đại với các khối hình vuông vức, mạnh mẽ nhưng được xử lý mềm mại bằng vật liệu và cây xanh.
Mặt tiền sử dụng sự kết hợp giữa đá ốp tự nhiên, gỗ nhựa ngoài trời, lam thép và kính lớn, tạo nên tổng thể vừa sang trọng vừa gần gũi. Các ban công được thiết kế rộng, kết hợp bồn cây và tiểu cảnh xanh giúp công trình luôn có sự sống và giảm bức xạ nhiệt.
Tầng thượng được thiết kế mái che và hệ lam thoáng, vừa tạo điểm nhấn kiến trúc vừa giúp không gian phía trên trở thành khu vực thư giãn lý tưởng cho gia đình.
Không gian xanh được bố trí xuyên suốt từ tầng một đến sân thượng, mang đến cảm giác như một khu vườn nhỏ giữa lòng phố.
Công trình được MiLi Cộng nghiên cứu và phát triển dựa trên tiêu chí: tối ưu diện tích đất, đảm bảo công năng sinh hoạt cho gia đình nhiều thế hệ và mang lại giá trị thẩm mỹ bền vững theo thời gian.
Công năng được tổ chức khoa học và tiện nghi
Tầng 1 – Không gian sinh hoạt chung
Tầng một được bố trí khoa học nhằm tối ưu sự tiện lợi cho sinh hoạt hằng ngày:
- Sân để xe rộng rãi phía trước
- Phòng khách thoáng và liên kết trực tiếp với khu vườn nhỏ
- Khu bếp và phòng ăn rộng rãi ở phía sau
- Một phòng ngủ thuận tiện cho người lớn tuổi
- Sân sau giúp thông gió và lấy sáng tự nhiên
Cách tổ chức không gian mở giữa phòng khách, phòng ăn và bếp giúp ngôi nhà luôn thông thoáng và tạo sự kết nối giữa các thành viên trong gia đình.
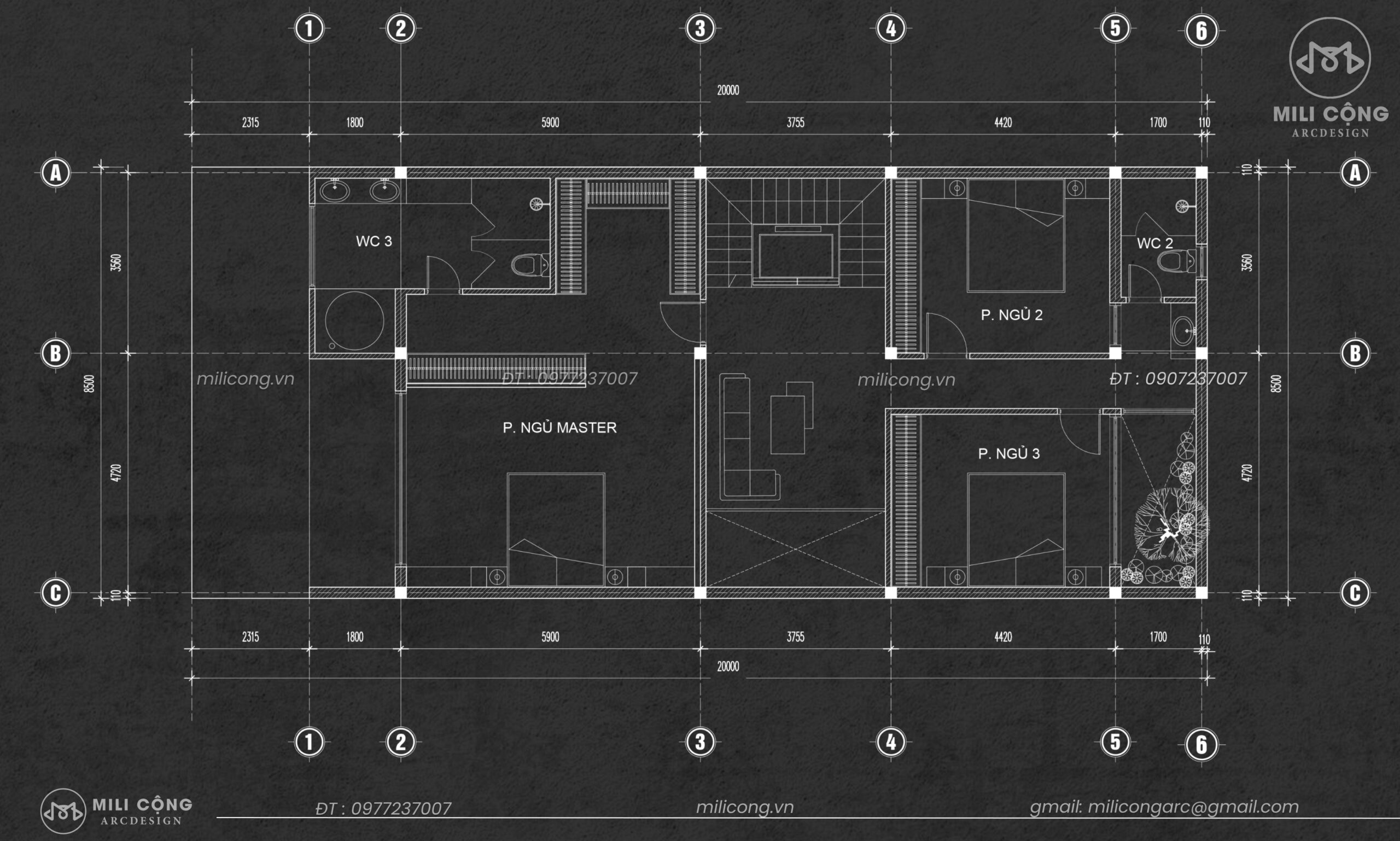
Tầng 2 – Không gian nghỉ ngơi riêng tư
Tầng hai là khu vực nghỉ ngơi chính của gia đình gồm:
- Phòng ngủ Master rộng rãi, có khu vệ sinh riêng và phòng thay đồ
- Hai phòng ngủ phụ dành cho các thành viên trong gia đình
- Phòng sinh hoạt chung tạo không gian gắn kết
- Hai phòng vệ sinh tiện nghi
Các phòng ngủ đều được thiết kế cửa sổ lớn và ban công để đón ánh sáng tự nhiên và gió trời.
Tầng 3 – Không gian tâm linh và thư giãn
Tầng trên cùng là khu vực mang tính tĩnh và riêng tư:
- Phòng thờ trang nghiêm
- Phòng đa năng hoặc phòng làm việc
- Khu giặt và sân phơi
- Sân thượng rộng rãi để trồng cây và thư giãn
Không gian sân thượng có thể trở thành một khu vườn nhỏ, nơi gia đình uống trà, đọc sách hoặc tận hưởng không khí trong lành.
PM House được thiết kế với nhiều giải pháp kiến trúc nhằm tối ưu vi khí hậu:
- Ban công rộng kết hợp cây xanh giảm nhiệt cho mặt tiền
- Hệ cửa kính lớn giúp lấy sáng tự nhiên
- Sân sau và khoảng thoáng giúp lưu thông không khí
- Lam che nắng ở tầng trên giúp giảm bức xạ mặt trời
Nhờ đó, ngôi nhà luôn giữ được sự mát mẻ, thông thoáng và tiết kiệm năng lượng.
Ưu điểm của thiết kế PM House
- Kiến trúc hiện đại, thẩm mỹ bền vững
- Không gian xanh được bố trí hợp lý
- Công năng khoa học, phù hợp gia đình nhiều thế hệ
- Nhiều khoảng mở giúp nhà luôn thông thoáng
- Có sân thượng thư giãn và khu sinh hoạt chung
Hạn chế cần lưu ý
- Chi phí đầu tư ban đầu cao hơn nhà phố cơ bản
- Mặt tiền nhiều chi tiết vật liệu nên cần thi công chuẩn
- Cây xanh cần được chăm sóc định kỳ để giữ thẩm mỹ
Với quy mô nhà phố 3 tầng hiện đại, tổng diện tích sàn xây dựng khoảng 300 – 320 m².
Chi phí xây dựng dự kiến:
- Phần thô: khoảng 3,6 – 4,0 triệu/m²
- Hoàn thiện trung bình: khoảng 6,5 – 7,5 triệu/m²
Tổng chi phí xây dựng hoàn thiện dao động khoảng:
2,0 – 2,4 tỷ đồng (tùy vật liệu và khu vực xây dựng).
Đây là mức chi phí hợp lý để sở hữu một công trình có thiết kế hiện đại, không gian xanh và công năng đầy đủ.
Mi Li Cộng – Đơn vị thiết kế và kiến tạo không gian sống
Với đội ngũ kiến trúc sư trẻ, sáng tạo và giàu nhiệt huyết, Mi Li Cộng Arcdesign luôn hướng đến việc tạo ra những công trình không chỉ đẹp về hình thức mà còn tối ưu về công năng và giá trị sử dụng lâu dài.
Mỗi công trình là một câu chuyện riêng, được nghiên cứu kỹ lưỡng để phù hợp với nhu cầu sống, phong cách và cá tính của từng gia chủ.
PM House chính là minh chứng cho triết lý thiết kế của Mi Li Cộng:
Kiến trúc không chỉ là nơi ở, mà còn là không gian nuôi dưỡng cảm xúc và kết nối con người với thiên nhiên.